Mountain cabin
Type: Projet personnel
Année: 2024


La « Mountain Cabin » est conçue comme un refuge robuste et confortable en toute saison. Implantée en appui direct contre le flanc de la montagne, elle organise une relation visuelle continue avec le paysage, grâce à une ouverture maximale vers l’extérieur.
Le socle, constitué d’un mur de soutènement en pierre, forme une assise minérale stable sur laquelle vient se greffer une structure acier porteuse d’une toiture plate à larges débords. Ces débords protègent les parois vitrées et la base contre les intempéries. L’entrée est relayée par une terrasse compacte, dans le prolongement du soubassement.
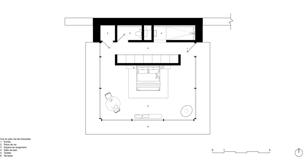
L’aménagement intérieur privilégie un espace de vie entièrement ouvert, complété par une zone plus intime, positionnée à l’arrière, le long du relief.



